
Darum geht’s
Von klein auf prägte mich meine Freude an der Schreinerei, das Entwickeln und Umsetzen von Ideen sowie meine Leidenschaft für Musik. Im Verlauf der letzten Jahre, in der sich privat alles um Musik drehte, hatte ich die Gelegenheit, viele Interpreten, aber auch Produzenten und andere Fachleute aus der Musikszene kennenzulernen. Im Gespräch mit Jugendlichen aus meinem Freundeskreis, mit Bekannten aus der Musikszene usw. hat sich bald herausgestellt, woran es im Raum Schaffhausen mangelt. Da die meisten jungen Musiker noch in der Ausbildung sind, haben sie begrenzte finanzielle Möglichkeiten. Zudem werden in professionellen Studios oft Termine zu Gunsten bekannterer Interpreten kurzfristig verschoben oder ganz abgesagt. Das führt dazu, dass eigentlich begabte Talente frustriert aufgeben und viele Jugendliche so keine Chance bekommen, ihre Fähigkeiten auszuloten und zu entwickeln. In meinem Freundes-und Bekanntenkreis sitzen bereits einige Musiker wie auf heissen Kohlen und warten darauf, endlich ihre Chance zu bekommen. Vielleicht entpuppt sich der eine oder andere als zukünftiger Star :)
Das Besondere an meinem Projekt
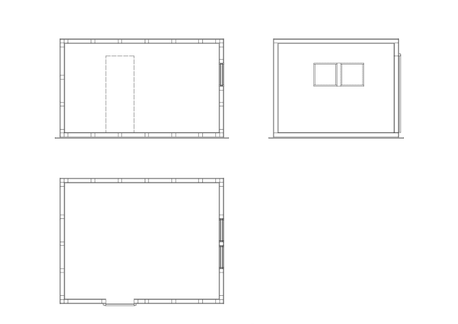
Geplant ist das Tonstudio als eine Raum-in-Raum Lösung. Das heißt, wir werden zwei Räume bauen, die nicht miteinander in Verbindung stehen und vom Boden entkoppelt sind. Das kleinere Zimmer mit einer Fläche von 3x3m und einer Höhe von 2,30m wird der Aufnahmeraum. Der grössere Raum mit 3x4m wird als Maschinen-/Regieraum dienen. Die sich gegenüber liegenden Wände sind verglast für die Kommunikation zwischen Produzent und Interpret. Im folgenden Abschnitt versuche ich, die komplizierten baulichen Abläufe in wenigen Sätzen zusammenzufassen: Um von der Umgebung und Geräuschen völlig isoliert zu sein, darf nichts am bestehenden Gebäude befestigt werden. Das ist der Hauptgrund für die sogenannte Raum-in-Raum Lösung. Als erstes legen wir eine 25mm dicke Schicht Gummi-Granulat Platten aus, die vor allem dem Schallschutz von außen gegen innen und umgekehrt dienen. Da dafür außer der Entkopplung auch noch Masse erforderlich ist, bauen wir ein 10cm dickes Lattengerüst, welches beidseitig mit 15mm Holzplatten beplankt wird und füllen dieses mit Dämmstoffen. Auch hier haben wir wieder die Herausforderung mit der Entkopplung. Wir lösen das Problem durch einfache Dichtungsbänder, die innen und außen auf alle Latten geklebt werden. Mit diesen Massnahmen gewährleisten wir, dass der Raum absolut schalldicht ist. Als nächstes wenden wir uns der Raumakustik zu . Diese verbessern wir gezielt durch perfekt platzierte Bassfallen, Breitbandabsorber und Diffusoren. Die Diffusoren stellen wir selbst her, Bassfallen und Absorber hingegen bestellen wir.
Dafür brauche ich Unterstützung
Wir haben die passenden Räumlichkeiten gefunden und werden diese vorwiegend in Eigenarbeit umbauen. Unterstützung brauchen wir in erster Linie für den Kauf der Technik und Baumaterialien, insbesondere für die Elemente zur akustischen Raumbehandlung.






