What is it?
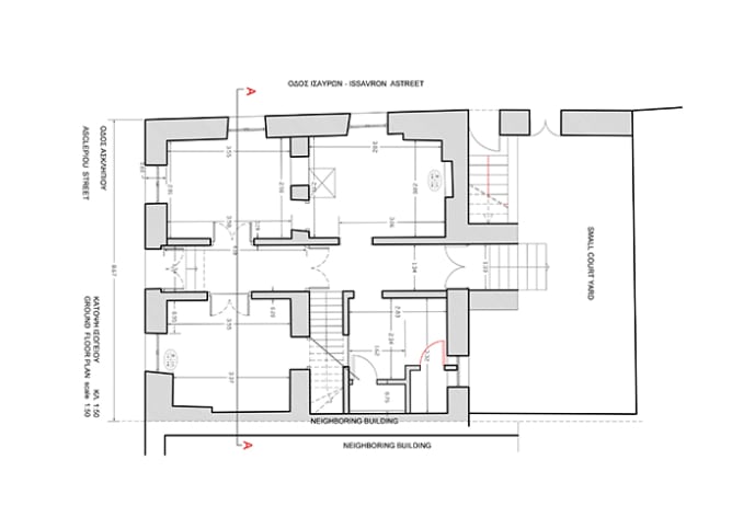
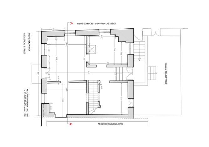
A-dash is an artistic project happening in Athens, Greece. We are restoring an archetypal neo-classical Athenian house; one of hundreds in the city that are slowly disappearing to ruin.
A-dash wants to encourage experimental, investigative and innovative approaches related to a spectrum of artistic fields: visual art – moving image – music – design – architecture.

Our ambition
To establish a non-profit artist initiative run collaboratively, with a strong focus on the crossing of borders between:
Geographical locations / Cultural identities / Political economies / Craft – new technologies / Creative disciplines
We will reflect on the sociological issues of our time through a diverse program of exhibitions – film screenings – lectures – workshops – symposiums – talks – other events.
The Project Space
- one that acts as a catalyst for forms of artistic expression; a creative dialogue that will infuse social, economic, cultural, technological and environmental exchanges.
- one that functions as an experimental lab where people from a spectrum of fields – art, design, architecture, music etc. – create debate and discussions, exchange ideas and instigate events.
- one that is democratically-orientated; a space in which to interrogate and investigate the sociological issues of the area and of the wider unstable political ecology of our time.
- one that is polymorphic; one where the «exhibition» space, the «studio» and the surrounding environments are interchangeable.
The Community
- an emphasis placed upon continuous exchanges with the local community; establishing and developing workshops, events and happenings that promote public autonomy.
- an arena within which the local community play an active role in shaping and energizing the space’s initiatives; giving rise to both collective and independent societal voices, thoughts and ideas.
- shifting attitudes; to dismantle predetermined notions of art-making/production and its audiences by establishing a platform that strives to make the «artist» and «the public» synonymous.
- to carve out channels that act as an interchanging link between multiple geographical, technological and cultural «sites», both in Athens and internationally.

A–dash is the bridge between two words, the line between A and B, a space between things, it connects without defining. an interstice. a transition. a dialogue.
The A-dash team
We need you to make this possible!
Your support will go towards:
- 50% House renovation: Electricity-Plumbing-Paint-Roof insulation
- 30% Material costs for: Exhibitions-Film screenings-Lectures-Workshops
- 5% Maintenance of the house
- 5% Unforeseen costs
- 10% Fundraising costs (wemakeit.com charges 10% in total)
The costs are estimated to cover a two year project timeframe.

Rewards:
From 500 euros, you will receive:
– a 2 night free stay in an Athenian apartment (double-bedroom) – a private tour of the A-dash project space, plus a tour of a secret space in Athens.
From 1000 euros, you can receive:
– a 2 night free stay in an Athenian apartment (double-bedroom) – a private tour of the A-dash project space – a print/poster especially made by one of the A-dash collaborators. – a hand-crafted ceramic A-dash cup.







